【外観】ご予約をいただければ、『平日の空いた時間』『周辺物件まとめて見たい』『1件だけ見たい』ももちろん可能です♪ お気軽にお問合せください♪
- 建物面積
- 97.20㎡
- 築年月
- 2023年1月(築3年)
- ※事前に必ずお問い合わせください
■他の物件もまとめて見学ツアーしませんか?
リバティーホームでは、他社様掲載の物件もまとめてご案内可能です。
「こっちのお家も気になるなぁ」
「何社ともやり取りするのは大変…」
そんな時はお任せください!
見学予約やスケジュール調整は、私たちがまとめて行います。
お客様は「これが見たい」と教えていただくだけで大丈夫です♪
右上の「見学予約する」ボタン、
または【029-825-3570】までお待ちしております。
土日はもちろん、平日、早朝や遅い時間(お仕事帰り)でのご見学も大歓迎です!
■「知りたい情報だけ」の短時間案内もOK!
貴重なお時間を無駄にしません。事前にお申し付けください。
(所要時間の目安)
(1)現地/物件見学(15分~)
(2)ご希望条件のご相談(20分~)
(3)資金計画・住宅ローンのご相談(30分~)
(4)【人気!】近隣物件との見比べツアー(30分~)
■プロ視点で「メリット・デメリット」を正直に解説
「地盤やハザードマップの情報」
「住宅ローン控除の申請」など、
物件の良い点だけでなく気をつけるべき点もしっかりご説明いたします。
■マイホーム探し初心者さんも大歓迎!
【相場が知りたい】
【まだ買うか決めていない】
【いい物件と出逢えていない】
どんな段階のお客様も、リバティーホームは大歓迎です!
茨城県全域の物件を知り尽くしたベテランスタッフと一緒に、自由で楽しいマイホーム探しをしましょう♪-
バストイレ別
-
カウンターキッチン
-
浴室乾燥機

外観
リビング
キッチン
洗面所
和室- 販売戸数
- 1戸
- 総戸数
- 1戸
- 間取り / 詳細
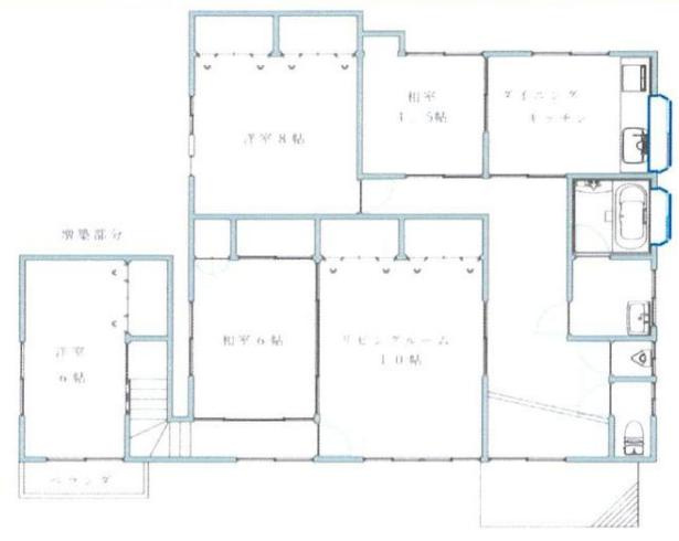
- 4LDK
LDK 16.0帖 1室/和室 4.5帖 1室/洋室 8.0帖 1室/洋室 6.0帖 1室/洋室 5.5帖 1室 - 向き
- 南
- 建物面積(坪数)
- 97.20㎡(29.4坪)
- 土地面積(坪数)
- 175.25㎡(53.01坪)
- 建ぺい率 /
容積率 - 50%/150%
- 築年月
- 2023年1月(築3年)
- 土地権利
- 所有権
- 土地
(敷金 / 保証金) - - / -
- 建物構造
- 木造 / 2階建
- 傾斜地部分面積
- -
- 路地状敷地
- -
- 私道負担面積
- -
- セットバック
- 無
- 高圧線下面積
- -
- 施工会社
- -
- 用途地域
- 第一種中高層住居専用
- 地目 / 地勢
- 宅地 / -
- 接道状況
- 角地(南西 公道 4.9m)(北 公道 4.4m)
- 国土法届出要否
- 不要
- 都市計画
- 市街化区域
- 総区画数 /
販売区画数 - 1区画/1区画
- 現況
- 空家
- その他
法令上の制限 - -
- 取引態様
- 仲介
- 引渡し
- 相談
- 取引条件の
有効期限 - 2026年03月13日
- 設備条件
-
- 現地見学会 / フローリング / バルコニー / 都市ガス / 公営水道 / 公共下水 / 2面バルコニー / システムキッチン / カウンターキッチン / オープンキッチン / バス・トイレ別 / 追焚機能浴室 / 浴室乾燥機 / 温水洗浄便座 / 洗髪洗面化粧台 / トイレ2ヶ所 / 浴室1坪以上 / 収納豊富
- 設備(その他)
-
-
公営水道・公共下水・都市ガス
- 物件番号
- 101665796
- 管理コード
- -
- 建築確認番号
- -
- 情報更新日
- 2026年03月03日
- 次回更新予定日
- 2026年03月13日
- 取扱会社
-
- リバティーホーム
- 茨城県土浦市国分町1-28
- TEL:029-825-3570
- 茨城県知事 (1) 第7424号
- 備考
- 【現地見学会 (随時開催)】
事前に【029-825-3570】までお問合せください。
当日のご見学、遅い時間帯のご見学、お仕事帰りのご見学等、
諸事情につきましてもご相談ください。
【お待ち合わせについて】
柔軟に対応いたします。
お客様のご希望をお聞かせください。
ご見学のお住まいについての
「住宅ローンと自己資金の割合は?」
「変動金利か固定金利か?」
「各銀行の借入れ金利は?」
など、住宅ローンに関する内容についても
ご案内時にしっかりと説明をいたします。
お客様ひとり一人に担当者が誠心誠意対応をさせていただきます。 -
ファーストフード
マクドナルド 牛久店
300m(4分)
-
ドラッグストア
ウエルシア牛久猪子店
702m(9分)
-
スーパー
業務スーパー 牛久店
877m(11分)
-
コンビニエンスストア
セブンイレブン 牛久愛和総合病院入口店
917m(12分)
-
小学校
牛久市立中根小学校
1155m(15分)
-
その他
タップスイミング牛久スクール
1217m(16分)
-
総合病院
牛久愛和総合病院
1251m(16分)
-
ファーストフード
モスバーガー牛久店
1261m(16分)
-
喫茶店・カフェ
ドトールコーヒーショップ EneJet牛久店
1395m(18分)
-
その他
すき家 牛久店
1488m(19分)
-
幼稚園
牛久幼稚園
1538m(20分)
-
保育園
下根保育園
1540m(20分)
-
市役所・区役所
牛久市役所
2044m(26分)
-
インテリア
ニトリ 牛久店
2188m(28分)
-
自動車教習所
つくば自動車学校
2338m(30分)
-
ファミリーレストラン
ココス ひたち野うしく店
2354m(30分)
-
駅
ひたち野うしく駅
2369m(30分)
-
銀行
常陽銀行ひたち野うしく支店
2412m(31分)
-
ホームセンター
ロイヤルホームセンター 牛久店
2445m(31分)
-
保育園
つくば市立高見原保育所
2480m(31分)
- 月々の支払額
- 円
- 購入希望物件価格
-
万円
- 頭金
-
万円
- 金利
-
%
- 返済額(ボーナス1回分)
-
万円
- 返済期間
-
年
現地見学会
物件の特徴
セールスポイント
住まいをお探しのお客様は是非「リバティーホーム」へ
売却・土地探し・注文住宅・マンション・リフォーム・収益物件など、不動産と建築に関する全てを弊社にて取り扱っております。
各種金融機関とのお取引があるため住宅ローンにも自信があります。
当日や遅めの時間のご見学も柔軟に調整可能です♪
些細なことでもリバティーホームまでお気軽にお問合せください。
ポイント
洗髪洗面化粧台 LDK15帖以上 クロゼット 収納豊富 温水洗浄便座
担当者のコメント
パノラマ画像
基本情報
設備条件
その他
牛久市猪子町 中古戸建の他の物件
周辺施設
支払いシミュレーション
※ボーナスは自動で年2回分で計算されます。
近隣の物件
よく見られている物件
牛久市猪子町 中古戸建
2,180万円
-
4LDK(97.20㎡)


山川 翔平
---リバティーホームのご案内---
◆経験豊富な担当が住宅ローンの相談を伺います。
◆自己資金0からの住宅購入できます。
◆即日のご案内可能です。
◆お客様のご都合に合わせて短時間のご案内も可能です。
---ご希望の物件を詳しく調査---
~調査レポート 無料進呈中~
●土地の調査
●周辺環境の調査
●統計の調査
---もっと詳しい情報を知る---
実際に現地をご見学
↓↓ ↓↓
029-825-3570