【外観】ご予約をいただければ、『平日の空いた時間』『周辺物件まとめて見たい』『1件だけ見たい』ももちろん可能です♪ お気軽にお問合せください♪
- 建物面積
- 143.52㎡
- 築年月
- 1987年5月(築38年)
- ※事前に必ずお問い合わせください
■現地見学会を随時受け付けております。(事前のご予約をお願いします。)
土日はもちろん、平日、早朝や遅い時間でのご見学も大歓迎です!
右上の「見学予約する」ボタンまたは、【029-825-3570】までお問い合わせください。
■貴重なお時間の中で、ご希望の情報をご案内致します!
お客様のご都合に合わせて「知りたい情報だけ」という短時間のご案内も可能です。
事前にお申し付けください。
おおよその所要時間や内容は、以下をご参考にしてみてください。
①現地/物件見学(15分~)
②ご希望条件のご相談(20分~)
③資金計画のご相談(30分~)
④会社の強みのご紹介(15分~)
⑤その他ご相談
■お客様の「気になる」点をスッキリさせるチャンスです。
「地盤や浸水被害に関連する情報」
「住宅ローン控除の申請方法」など
スタッフが丁寧にサポートいたします。
■マイホーム購入に関する
「購入諸費用」
「住宅ローン金利」
「税制優遇」など
しっかりとご説明いたします。
【相場が知りたいお客様】
【購入を急いでいないお客様】
【マイホームを探し始めのお客様】
【いい物件と出逢えていないお客様】
リバティーホームは大歓迎です!
私たちと一緒に自由で楽しいマイホーム探しをしましょう♪
お気軽にお問い合わせください。-
バストイレ別
- 販売戸数
- 1戸
- 総戸数
- 1戸
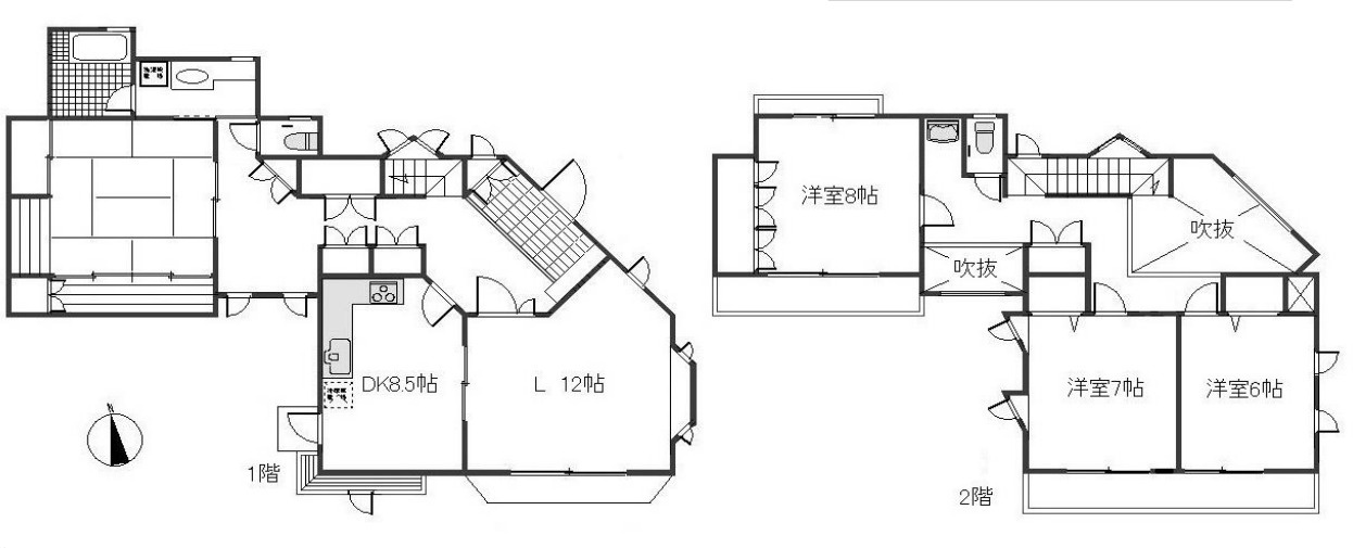
- 間取り / 詳細
- 4LDK
LDK 20.5帖 1室/和室 1室/洋室 8.0帖 1室/洋室 6.0帖 1室/洋室 7.0帖 1室 - 向き
- 南
- 建物面積(坪数)
- 143.52㎡(43.41坪)
- 土地面積(坪数)
- 247.73㎡(74.93坪)
- 建ぺい率 /
容積率 - 50%/100%
- 築年月
- 1987年5月(築38年)
- 駐車場 /
月額料金 - 有(屋根有) 0円
- 土地権利
- 所有権
- 土地
(敷金 / 保証金) - - / -
- 建物構造
- 木造 / 2階建
- 傾斜地部分面積
- -
- 路地状敷地
- -
- 私道負担面積
- -
- セットバック
- 無
- 高圧線下面積
- -
- 施工会社
- -
- 用途地域
- 第一種低層住居専用
- 地目 / 地勢
- 宅地 / -
- 接道状況
- 角地(北 公道 6.2m)(東 公道 6.2m)
- 国土法届出要否
- 不要
- 都市計画
- 市街化区域
- 総区画数 /
販売区画数 - 1区画/1区画
- 現況
- 空家
- その他
法令上の制限 - -
- 取引態様
- 一般媒介
- 引渡し
- 即時
- 取引条件の
有効期限 - 2026年01月30日
- 設備条件
-
- 陽当り良好 / 閑静な住宅地 / 現地見学会 / 新婚さん向け / 専用庭 / バルコニー / 都市ガス / 公営水道 / 公共下水 / システムキッチン / バス・トイレ別 / 追焚機能浴室 / トイレ2ヶ所 / 収納豊富 / 住戸内覧可能
- 設備(その他)
-
-
公営水道・公共下水・都市ガス
- 物件番号
- 84998663
- 管理コード
- -
- 建築確認番号
- -
- 情報更新日
- 2026年01月16日
- 次回更新予定日
- 2026年01月30日
- 取扱会社
-
- リバティーホーム
- 茨城県土浦市国分町1-28
- TEL:029-825-3570
- 茨城県知事 (1) 第7424号
- 備考
- 【現地見学会 (随時開催)】
事前に【029-825-3570】までお問合せください。
当日のご見学、遅い時間帯のご見学、お仕事帰りのご見学等、
諸事情につきましてもご相談ください。
【お待ち合わせについて】
柔軟に対応いたします。
お客様のご希望をお聞かせください。
ご見学のお住まいについての
「住宅ローンと自己資金の割合は?」
「変動金利か固定金利か?」
「各銀行の借入れ金利は?」
など、住宅ローンに関する内容についても
ご案内時にしっかりと説明をいたします。
お客様ひとり一人に担当者が誠心誠意対応をさせていただきます。 -
酒屋
やまや高津店
518m(7分)
-
ファーストフード
マクドナルド 土浦天川店
532m(7分)
-
スーパー
KASUMI(カスミ) 高津店
617m(8分)
-
生活雑貨店
ザ・ダイソー土浦高津店
1116m(14分)
-
幼稚園
天川幼稚園
1240m(16分)
-
小学校
東小学校
1491m(19分)
-
幼稚園
もみじ幼稚園
1724m(22分)
-
ファミリーレストラン
サイゼリヤ イオンモール土浦店
2427m(31分)
-
博物館
上高津貝塚ふるさと歴史の広場
2597m(33分)
-
保育園
ニチイキッズ 土浦さくら保育園
2655m(34分)
-
保育園
白帆保育園
2827m(36分)
-
ファミリーレストラン
ココス 阿見住吉店
3241m(41分)
-
ホームセンター
ジョイフル本田 荒川沖店
3850m(49分)
-
喫茶店・カフェ
スターバックスコーヒー 土浦店
4227m(53分)
-
公園
乙戸沼公園
4744m(60分)
-
ラーメン
山岡家阿見店
4822m(61分)
-
その他
阿見認定こども園
4917m(62分)
-
公園
乙戸ファミリースポーツ公園
4979m(63分)
-
生活雑貨店
しまむら 阿見店
5641m(71分)
-
公園
赤塚公園
5738m(72分)
- 月々の支払額
- 9.6円
- 購入希望物件価格
-
万円
- 頭金
-
万円
- 金利
-
%
- 返済額(ボーナス1回分)
-
万円
- 返済期間
-
年
現地見学会
物件の特徴
セールスポイント
土浦市で住まいをお探しのお客様は是非「リバティーホーム」へ
売却・土地探し・注文住宅・マンション・リフォーム・収益物件など、不動産と建築に関する全てを弊社にて取り扱っております。
各種金融機関とのお取引があるため住宅ローンにも自信があります。
当日や遅めの時間のご見学も柔軟に調整可能です♪
些細なことでもリバティーホームまでお気軽にお問合せください。
ポイント
担当者のコメント
基本情報
設備条件
その他
土浦市永国東町 中古戸建の他の物件
周辺施設
支払いシミュレーション
※ボーナスは自動で年2回分で計算されます。
近隣の物件
土浦市永国東町 中古戸建
1,630万円
-
4LDK(143.52㎡)


佐佐木 省吾
---リバティーホームのご案内---
◆経験豊富な担当が住宅ローンの相談を伺います。
◆自己資金0からの住宅購入できます。
◆即日のご案内可能です。
◆お客様のご都合に合わせて短時間のご案内も可能です。
---ご希望の物件を詳しく調査---
~調査レポート 無料進呈中~
●土地の調査
●周辺環境の調査
●統計の調査
---もっと詳しい情報を知る---
実際に現地をご見学
↓↓ ↓↓
029-825-3570