【外観】ご予約をいただければ、『平日の空いた時間』『周辺物件まとめて見たい』『1件だけ見たい』ももちろん可能です♪ お気軽にお問合せください♪
- ※事前に必ずお問い合わせください
■現地見学会を随時受け付けております。(事前のご予約をお願いします。)
土日はもちろん、平日、早朝や遅い時間でのご見学も大歓迎です!
右上の「見学予約する」ボタンまたは、【029-825-3570】までお問い合わせください。
■貴重なお時間の中で、ご希望の情報をご案内致します!
お客様のご都合に合わせて「知りたい情報だけ」という短時間のご案内も可能です。
事前にお申し付けください。
おおよその所要時間や内容は、以下をご参考にしてみてください。
①現地/物件見学(15分~)
②ご希望条件のご相談(20分~)
③資金計画のご相談(30分~)
④会社の強みのご紹介(15分~)
⑤その他ご相談
■お客様の「気になる」点をスッキリさせるチャンスです。
「地盤や浸水被害に関連する情報」
「住宅ローン控除の申請方法」など
スタッフが丁寧にサポートいたします。
■マイホーム購入に関する
「購入諸費用」
「住宅ローン金利」
「税制優遇」など
しっかりとご説明いたします。
【相場が知りたいお客様】
【購入を急いでいないお客様】
【マイホームを探し始めのお客様】
【いい物件と出逢えていないお客様】
リバティーホームは大歓迎です!
私たちと一緒に自由で楽しいマイホーム探しをしましょう♪
お気軽にお問い合わせください。-
バストイレ別
-
TVモニタ付きインターホン
-
カウンターキッチン
-
浴室乾燥機

外観
リビング
キッチン
洗面所
寝室- 販売戸数
- 1戸
- 総戸数
- 21戸
- 間取り / 詳細
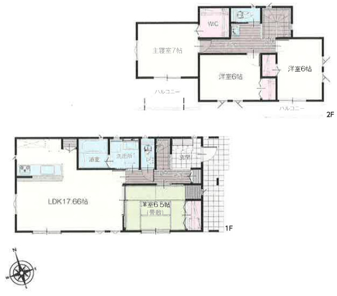
- 4LDK
LDK 17.6帖 1室/和室 6.5帖 1室/洋室 7.0帖 1室/洋室 6.0帖 1室/洋室 6.0帖 1室 - 向き
- -
- 建物面積(坪数)
- 107.91㎡(32.64坪)
- 土地面積(坪数)
- 217.00㎡(65.64坪)
- 建ぺい率 /
容積率 - 40%/80%
- 築年月
- 2025年2月(新築)
- 駐車場 /
月額料金 - 有(3台) 0円
- 土地権利
- 所有権
- 土地
(敷金 / 保証金) - - / -
- 建物構造
- 木造 / 2階建
- 傾斜地部分面積
- -
- 路地状敷地
- -
- 私道負担面積
- -
- セットバック
- 無
- 高圧線下面積
- -
- 施工会社
- -
- 用途地域
- 第一種低層住居専用
- 地目 / 地勢
- 山林 / -
- 接道状況
- 一方(南西 公道 6.0m)
- 国土法届出要否
- 不要
- 都市計画
- 市街化区域
- 総区画数 /
販売区画数 - 21区画/1区画
- 現況
- 完成済み
- その他
法令上の制限 - -
- 取引態様
- 一般媒介
- 引渡し
- 即時
- 取引条件の
有効期限 - 2026年01月30日
- 設備条件
-
- 陽当り良好 / 住宅性能保証付 / 住宅金融支援機構利用可 / 現地見学会 / 新婚さん向け / 建物検査済み / フローリング / 専用庭 / バルコニー / プロパンガス / 公営水道 / 公共下水 / 24時間換気システム / 駐車3台可 / 食器洗い乾燥機 / システムキッチン / カウンターキッチン / オープンキッチン / バス・トイレ別 / 追焚機能浴室 / 浴室乾燥機 / 温水洗浄便座 / 洗髪洗面化粧台 / トイレ2ヶ所 / 浴室1坪以上 / 床下収納 / ウォークインクロゼット / 収納豊富 / TVモニタ付インターホン / 複層ガラス / ディンプルキー / 住戸内覧可能
- 設備(その他)
-
-
公営水道・公共下水・プロパンガス
- 物件番号
- 89190098
- 管理コード
- -
- 建築確認番号
- 第24UDI1W建01793号
- 情報更新日
- 2026年01月16日
- 次回更新予定日
- 2026年01月30日
- 取扱会社
-
- リバティーホーム
- 茨城県土浦市国分町1-28
- TEL:029-825-3570
- 茨城県知事 (1) 第7424号
- 備考
- 【現地見学会 (随時開催)】
事前に【029-825-3570】までお問合せください。
当日のご見学、遅い時間帯のご見学、お仕事帰りのご見学等、
諸事情につきましてもご相談ください。
【お待ち合わせについて】
柔軟に対応いたします。
お客様のご希望をお聞かせください。
ご見学のお住まいについての
「住宅ローンと自己資金の割合は?」
「変動金利か固定金利か?」
「各銀行の借入れ金利は?」
など、住宅ローンに関する内容についても
ご案内時にしっかりと説明をいたします。
お客様ひとり一人に担当者が誠心誠意対応をさせていただきます。 -
ホームセンター
コメリハード&グリーン猿島店
169m(3分)
-
銀行
常陽銀行猿島出張所
653m(9分)
-
小学校
坂東市立沓掛小学校
665m(9分)
-
銀行
筑波銀行猿島支店
739m(10分)
-
スーパー
エコス 沓掛店
842m(11分)
-
郵便局
猿島郵便局
865m(11分)
-
郵便局
石下飯沼郵便局
1761m(23分)
-
中学校
猿島中学校
2340m(30分)
-
コンビニエンスストア
セブンイレブン 坂東上岩井店
5147m(65分)
-
整骨院
さわき接骨院
6135m(77分)
-
保育園
安静保育園
6562m(83分)
-
寿司
はま寿司 常総石下店
7819m(98分)
-
その他
坂東市立認定こども園ひまわり
8005m(101分)
-
高校
茨城県立石下高校
8296m(104分)
-
そば・うどん
ファミリー食堂山田うどん食堂 石下バイパス店
8651m(109分)
-
保育園
ひかり保育園
9027m(113分)
-
その他
認定こども園すずのき
9028m(113分)
-
幼稚園
認定こども園さわきこども園
9634m(121分)
-
幼稚園
八千代中央幼稚園
10317m(129分)
-
高校
茨城県立境高校
11147m(140分)
- 月々の支払額
- 9.6円
- 購入希望物件価格
-
万円
- 頭金
-
万円
- 金利
-
%
- 返済額(ボーナス1回分)
-
万円
- 返済期間
-
年
現地見学会
物件の特徴
セールスポイント
坂東市で住まいをお探しのお客様は是非「リバティーホーム」へ
売却・土地探し・注文住宅・マンション・リフォーム・収益物件など、不動産と建築に関する全てを弊社にて取り扱っております。
各種金融機関とのお取引があるため住宅ローンにも自信があります。
当日や遅めの時間のご見学も柔軟に調整可能です♪
些細なことでもリバティーホームまでお気軽にお問合せください。
ポイント
沓掛小学校 猿島中学校 ビルトイン食洗機 前面道路6m カップボード付き
担当者のコメント
パノラマ画像
基本情報
設備条件
その他
周辺施設
支払いシミュレーション
※ボーナスは自動で年2回分で計算されます。
近隣の物件
坂東市沓掛23-P1 新築戸建 15号棟
2,190万円
-
4LDK(107.91㎡)


佐佐木 省吾
---リバティーホームのご案内---
◆経験豊富な担当が住宅ローンの相談を伺います。
◆自己資金0からの住宅購入できます。
◆即日のご案内可能です。
◆お客様のご都合に合わせて短時間のご案内も可能です。
---ご希望の物件を詳しく調査---
~調査レポート 無料進呈中~
●土地の調査
●周辺環境の調査
●統計の調査
---もっと詳しい情報を知る---
実際に現地をご見学
↓↓ ↓↓
029-825-3570