【外観】ご予約をいただければ、『平日の空いた時間』『周辺物件まとめて見たい』『1件だけ見たい』ももちろん可能です♪ お気軽にお問合せください♪
- 価格
- 1,799万円
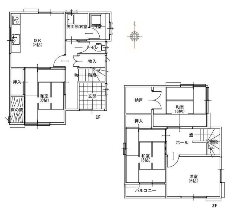
- 間取り
- 4LDK
- 土地面積
- 159.53㎡
- 建物面積
- 89.07㎡
- 築年月
- 1985年5月(築41年)
-
バストイレ別
- 販売戸数
- -
- 総戸数
- -
- 間取り / 詳細
- 4LDK
- 向き
- -
- 建物面積(坪数)
- 89.07㎡(26.94坪)
- 土地面積(坪数)
- 159.53㎡(48.25坪)
- 建ぺい率 /
容積率 - -/-
- 築年月
- 1985年5月(築41年)
- 駐車場 / 月額
- 有 / -
- 土地権利
- 所有権
- 土地
(敷金 / 保証金) - - / -
- 建物構造
- 木造 / 2階建
- 傾斜地部分面積
- -
- 路地状敷地
- -
- 私道負担面積
- -
- セットバック
- 無
- 高圧線下面積
- -
- 施工会社
- -
- 用途地域
- 第二種低層住居専用
- 地目 / 地勢
- 宅地 / -
- 接道状況
- -
- 国土法届出要否
- 不要
- 都市計画
- 市街化区域
- 総区画数 /
販売区画数 - -/-
- 現況
- 空家
- その他
法令上の制限 - -
- 取引態様
- 仲介
- 引渡し
- 相談
- 取引条件の
有効期限 - 2026年05月29日
- 設備条件
-
- フローリング / バルコニー / バス・トイレ別
- 設備(その他)
-
-
-
- 物件番号
- 96892418
- 管理コード
- -
- 建築確認番号
- -
- 情報更新日
- 2026年05月15日
- 次回更新予定日
- 2026年05月29日
- 取扱会社
-
- リバティーホーム
- 茨城県土浦市国分町1-28
- TEL:029-825-3570
- 茨城県知事 (1) 第7424号
- 備考
- 【現地見学会 (随時開催)】
事前に【029-825-3570】までお問合せください。
当日のご見学、遅い時間帯のご見学、お仕事帰りのご見学等、
諸事情につきましてもご相談ください。
【お待ち合わせについて】
柔軟に対応いたします。
お客様のご希望をお聞かせください。
ご見学のお住まいについての
「住宅ローンと自己資金の割合は?」
「変動金利か固定金利か?」
「各銀行の借入れ金利は?」
など、住宅ローンに関する内容についても
ご案内時にしっかりと説明をいたします。
お客様ひとり一人に担当者が誠心誠意対応をさせていただきます。 -
幼稚園
中村白百合幼稚園
422m(6分)
-
スーパー
KASUMI(カスミ) 中村店
992m(13分)
-
コンビニエンスストア
セブンイレブン 土浦中荒川沖店
1000m(13分)
-
公園
乙戸沼公園
1252m(16分)
-
ホームセンター
ジョイフル本田 荒川沖店
1286m(17分)
-
ファミリーレストラン
サイゼリヤ 荒川沖店
1987m(25分)
-
ファーストフード
マクドナルド 荒川沖東店
2129m(27分)
-
保育園
稲岡保育所
2563m(33分)
- 月々の支払額
- 円
- 購入希望物件価格
-
万円
- 頭金
-
万円
- 金利
-
%
- 返済額(ボーナス1回分)
-
万円
- 返済期間
-
年
物件の特徴
セールスポイント
住まいをお探しのお客様は是非「リバティーホーム」へ
売却・土地探し・注文住宅・マンション・リフォーム・収益物件など、不動産と建築に関する全てを弊社にて取り扱っております。
各種金融機関とのお取引があるため住宅ローンにも自信があります。
当日や遅めの時間のご見学も柔軟に調整可能です♪
些細なことでもリバティーホームまでお気軽にお問合せください。
ポイント
担当者のコメント
基本情報
設備条件
その他
周辺施設
支払いシミュレーション
※実際の金額と異なる場合があります。
※ボーナスは自動で年2回分で計算されます。
近隣の物件
よく見られている物件
土浦市中村南 中古戸建
1,799万円
-
4LDK(89.07㎡)


櫻井 直樹
---リバティーホームのご案内---
◆経験豊富な担当が住宅ローンの相談を伺います。
◆自己資金0からの住宅購入できます。
◆即日のご案内可能です。
◆お客様のご都合に合わせて短時間のご案内も可能です。
---ご希望の物件を詳しく調査---
~調査レポート 無料進呈中~
●土地の調査
●周辺環境の調査
●統計の調査
---もっと詳しい情報を知る---
実際に現地をご見学
↓↓ ↓↓
029-825-3570